Внимание: Santreyd — информационный посредник. Товары представлены в рамках параллельного импорта. Изображения и описания носят информационный характер.
+7 (499) 113-65-74

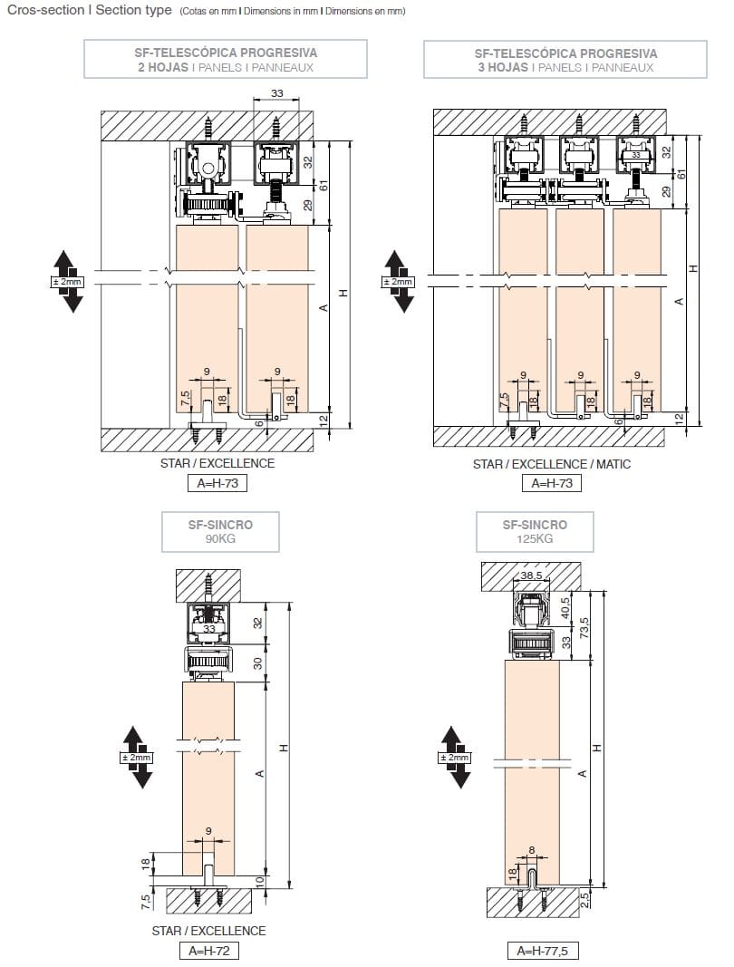
Система телескопических и синхронизированных дверей Saheco MULTIPLO TIMBER ARCH-00028061

Артикул: ARCH-00028061 Бренд: Saheco Код: 105 075 086
0
Важная информация для покупателей:

Santreyd является информационным посредником. Товары представлены в рамках параллельного импорта. Изображения и описания носят информационный характер и могут отличаться от оригинала.

Информация о рекламодателе объявление № 5075086 от 14.03.2026 г. ООО "САН&nbps;&nbps;&nbps;
Сведения о рекламодателе предоставляется по запросу Правообладателя и/или контролирующих структур

Цена товара
Цена по запросу
Отправьте запрос, чтобы узнать актуальную цену и условия поставки
Под заказ Сроки поставки уточните у менеджера
Укажите количество:шт

Основные характеристики

Бренд
Saheco
Страна производителя
-
Гарантия
-
Размеры
-
Вес
-
Цвет
-

Multiple Timber - это система для телескопических и синхронизированных дверей весом до 125 кг. Лучший вариант для разделения больших пространств с несколькими деревянными панелями с минимальными усилиями скольжения. Он поддерживает до 125 кг и позволяет перемещать панели наиболее подходящим и универсальным способом для каждого пространства.

  • Телескопическая и синхронизированная система раздвижных деревянных дверей.
  • Звездный рельс: плавный и универсальный дизайн, с несколькими вариантами применения на дверях.
  • Варианты установки: телескопическая, прогрессивная телескопическая до 3 дверей на одной стороне, синхронизированная и синхронизированная прогрессивная телескопическая, до 2 + 2 дверей для закрытия больших пространств.
  • Ролики на шарикоподшипниках для бесшумного и легкого скольжения.
  • Возможность интеграции Soft close до 90 кг во всех вариантах установки, для большей плавности и безопасности при открытии и закрытии системы.
  • Плавающая нижняя направляющая, чтобы закрыть зазоры без нижнего профиля и оставить зону прохода свободной.
  • Регулировка высоты + / -2 мм.
  • возможность закрытия зазоров шириной до 5 метров.
Информация для покупателей:

Все описания товаров составлены на основе открытых данных и технической документации. Изображения товаров носят информационный характер и могут отличаться от оригинала.

Артикул ARCH-00028061
Бренд Saheco
Тип система телескопических и синхронизированных дверей

Отзывы покупателей

0 на основе 0 отзывов

Вопросы и ответы

Здесь вы можете найти ответы на часто задаваемые вопросы или задать свой вопрос о товаре.

Как можно оплатить заказ?

Оплата товаров производится по выставленому счету нашим менеджером, после оформления заказа. Доступные способы оплаты отображены в «Корзине» в момент оформления.

Отвечен 10 марта 2025

Условия доставки и оплаты

ДОСТАВКА ПО МОСКВЕ И ОБЛАСТИ:
Экспресс‑доставка за один день!

Успевайте оплатить заказ до 9:00 — и в тот же день, до 23:00, мы привезём его при наличии на складе.

Стоимость — 6 500 ₽. Быстро, чётко, без ожидания.

ДОСТАВКА ПО ВСЕЙ РОССИИ
Во все регионы круглый год

Надёжные транспортные компании — СДЭК, Деловые Линии, ПЭК, Байкал Сервис — доставят ваш заказ в любой регион.

Удобные варианты оплаты доставки:

Напрямую перевозчику — по отдельному счёту от ТК.

Через нас — мы включим предварительную стоимость доставки в общий счёт. После упаковки и взвешивания, если тариф изменится, разницу вы доплачиваете напрямую транспортной компании — прозрачно и без скрытых переплат.

Стоимость доставки и упаковки оплачивает покупатель. Сроки — от 10 до 30 календарных дней (зависят от правил выбранной ТК).

СПОСОБЫ ОПЛАТЫ:
QR, картой, переводом

Выбирайте то, что удобно:

  • Онлайн банковской картой — через защищённый платёжный шлюз
  • По счёту — банковский перевод по реквизитам
  • По QR‑коду — быстро и без лишних действий

Оплата наличными и при получении недоступна.

Все заказы принимаются только при 100% предоплате в соответствии с условиями договора.

Гарантия на товар

Гарантия 12 месяцев

Система телескопических и синхронизированных дверей Saheco MULTIPLO TIMBER ARCH-00028061 предоставляется с гарантией 12 месяцев с момента покупки.

Условия гарантии:
  • Гарантия распространяется на производственные дефекты
  • Гарантийный талон должен быть заполнен и заверен печатью продавца
  • Товар должен использоваться по назначению и в соответствии с инструкцией
  • Гарантия не распространяется на повреждения, вызванные неправильной установкой или эксплуатацией
Важная информация:

Гарантийные обязательства выполняются в рамках законодательства РФ о параллельном импорте. Для предъявления претензий по гарантии необходимо обратиться к продавцу.

Цена по запросу
Товар: "Обои виниловые бежевые 0.70 м 919653 RASCH Safrano" добавлен в корзину
Оформить заказ
Товар добавлен в корзину
Оформить заказ
Ваша оценка учтена
Общая оценка товара: 3.5
Вывод сообщения о неверном действии со стороны пользователя
Сообщение об успешном действии: отправлена форма, успешный вход и т.д.
Сообщение об успешном действии: отправлена форма, успешный вход и т.д.